0

0

Moradias Geminadas V3 – Caramos

Moradias Geminadas V3 – Caramos

1 sala(s)
3 quarto(s)
4 casa(s) de banho
1 Garagem(s)
Ficha Técnica
345.000,00 €
Partilhar propriedade

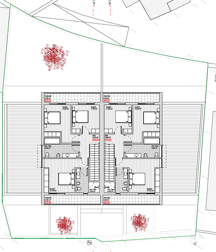
Duas Moradias Geminadas V3 em Caramos

Apresentamos duas moradias geminadas V3, situadas em Caramos, distribuídas por rés-do-chão e andar, com excelentes áreas interiores e logradouros privativos.

Fração A – Poente

  • Área coberta: 228,75 m²

  • Alpendres/varandas: 30,85 m²

  • Logradouro: 162,15 m²

  • Área total equivalente: 262,33 m² (504,91‰)
    ✔ 2 Lugares de estacionamento cobertos
    ✔ Logradouro mais amplo

Fração B – Nascente

  • Área coberta: 229,60 m²

  • Alpendres/varandas: 30,85 m²

  • Logradouro: 122,45 m²

  • Área total equivalente: 257,22 m² (495,09‰)
    ✔ 2 Lugares de estacionamento cobertos

Características Comuns

  • Tipologia T3

  • Sala ampla com 39,70 m²

  • 3 quartos (um de 17,75 m²)

  • 3 instalações sanitárias

  • Garagem + coberto

  • Boa exposição solar (poente / nascente)

Localizadas em zona residencial tranquila de Caramos, com bons acessos e proximidade a serviços essenciais.

Location not found

Não apresenta características neste imóvel

Classe Energética

Está interessado? Fale connosco

Relacionados

Rua de Câmpelo, Vila Cova da Lixa

100 ㎡
1 sala(s)
3 quarto(s)
1 casa(s) de banho
600,00 €

/mês

Av. do Alto da Lixa

200 ㎡
1 sala(s)
3 quarto(s)
3 casa(s) de banho
255.000,00 €

Avenida do Alto da Lixa

200 ㎡
1 sala(s)
3 quarto(s)
3 casa(s) de banho
255.000,00 €

Rua da Torre, Vila Cova da Lixa

191,4 ㎡
115.000,00 €
232 ㎡
1 sala(s)
3 quarto(s)
3 casa(s) de banho
340.000,00 €

Rua do Serralheiro Figueiró Amarante

120 ㎡
41.000,00 €